Affare Bienes Raíces

  • 3318144497
  • AffareBienesRaices.easybroker.com

OFICINA EN VENTA TORRE BUCE

Altamira, Zapopan

$11,187,000 For Sale

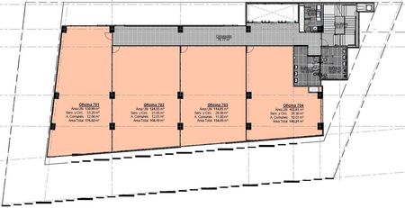
  • 169.5 m² total space
  • 8 Floor
  • EB-QK0005 ID
Description

Oficina en venta ubicada en Torre Buce, ubicada sobre calle Hipódromo. Zona rodeada por avenidas importantes y con múltiples servicios a sus alrededores tales como: Centros Comerciales, Bancos, Restaurantes, Tiendas de conveniencia, hoteles, etc.
El desarrollo cuenta con amenidades en el piso 11 las cuales son:
- Recepción
- Terraza
- Área de Networking
- Cocineta en cada piso
- Baños en cada piso
- Lobby
La oficina cuenta con los siguientes beneficios:
-Obra Gris

Affare Bienes Raíces

  • 3318144497
  • AffareBienesRaices.easybroker.com