Llámanos

3318144497

Llámanos

3318144497

CASA EN PREVENTA EN RESIDENCIAL PUERTA DE HIERRO TUXTLA!

Campestre Arenal, Tuxtla Gutiérrez, Chiapas

  • $7,500,000 MXN En Venta
  • $7,500,000 MXN En Venta
Ver Tour Virtual

Detalles

  • Tipo: Casa
  • ID: EB-VW6799
  • Clave interna: OSBA010426

Descripción

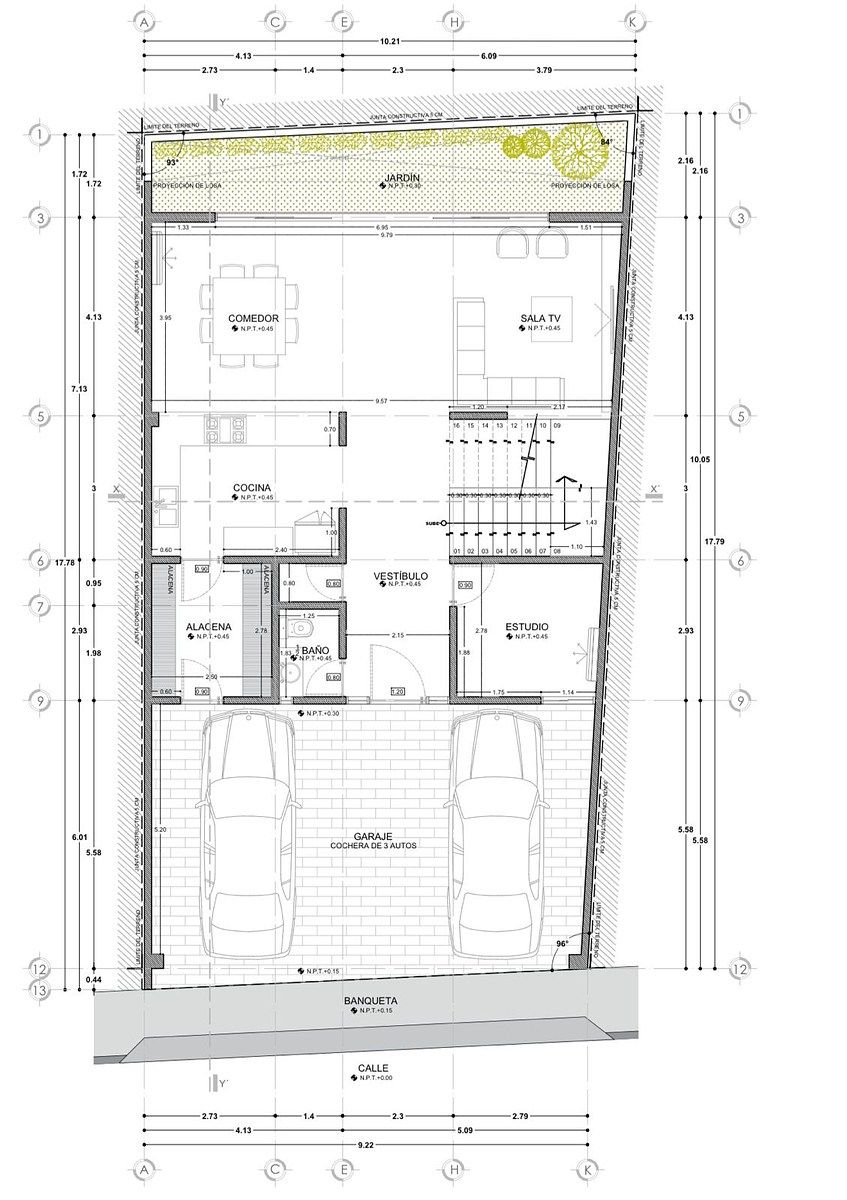
Casa en preventa con excelente distribución y fachada.

Ubicada en el residencial más lujoso de la ciudad, Residencial Puerta De Hierro Golf & Spa

Cuenta en planta baja con;

- Cochera para 2 vehículos
- Estudio
- medio baño
- Cocina integral con amplia alacena
- Sala
- Comedor
- Jardín trasero

En 1er nivel;

- Sala de tv
- Recamara master con enorme vestidor y baño de lujo
- 2 recamarar jr con vestidor y baño completo cada una

En el 3er nivel;

- Amplio roofgarden
- Cuarto de servicio con baño completo y bodega
- Area de lavado y servicio

Y sin olvidar las amenidades con las que cuenta Puerta De Hierro Tuxtla!
Affare Bienes Raíces

Affare Bienes Raíces

EB-VW6799
Imprimir propiedad

Ubicación

Campestre Arenal, Tuxtla Gutiérrez, Chiapas

Propiedades destacadas